03-5464-1581

営業時間:
9:30-18:30
定休日:
土日祝日

原宿・表参道の貸店舗・事業用物件|株式会社オフィス・ミツキ > (事務所(賃貸))地域から探す > 渋谷区 > レインボービル > 2F

レインボービル 2F

物件紹介

賃料/坪単価
99万円 /
27507.64円
坪数/面積
35.99坪 /
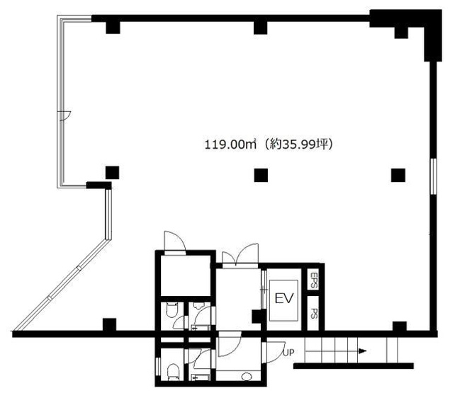
119.00㎡
所在階
2階
管理費・共益費
99,000円
敷金
4ヶ月
礼金
2ヶ月
  • お問い合わせ
  • 検討リストに追加

PHOTO GALLERY

印刷する
  • 【外観】 | レインボービル |  

    【外観】 

  • 【間取り】 | レインボービル |  

    【間取り】 

  • 【外観】 | レインボービル |  
  • 【エントランス】 | レインボービル |  
  • 【その他】 | レインボービル |  
  • 【周辺】 | レインボービル | ラフォーレ原宿まで130m 
  • 【周辺】 | レインボービル | 原宿警察署まで364m 

※写真や図と実際の現状とが異なる場合は現状を優先させていただきます。

設備条件

  • エレベーター
  • 24時間緊急通報システム

お問い合わせ

株式会社オフィス・ミツキ

03-5464-1581

  • 〒150-0001
  • 東京都渋谷区神宮前6丁目18-1 クレインズパーク2F

9:30-18:30  定休日:土日祝日

物件概要

【事務所】 物件番号:99184160 情報更新日:2025年11月18日 次回更新予定日:2026年02月09日
所在地 東京都渋谷区神宮前1丁目
交通
賃料/坪単価 99万円/27507.64円 坪数(面積) 35.99坪(119.00㎡)
管理費・共益費 99,000円 敷金/礼金/保証金 4ヶ月/2ヶ月/-
償却/敷引 -/- 更新料 0万円
権利金/雑費 -/-
造作譲渡金 - 駐車場/月額料金 無/-
保険加入/料金 有/- 保険名/保険期間 テナント総合保険保険/-
保証人代行義務/利用料 必加入/ フォーシーズ株式会社初回(賃料+管理費)×100%、年間保証委託料1万円 保証会社 フォーシーズ
保証会社詳細 - 向き
築年月(築年数) 1984年 12月 (築41年) 契約期間 定期借家 2年
種別/構造 事務所/鉄骨鉄筋コンクリート 部屋/所在階/階建 2F/2階/3階建 地下1階
総戸数 - 現況/引渡時期 -/2025年12月上旬予定
取引態様 仲介 用途地域 -
物件番号 99184160 取引条件の有効期限 2026年02月09日
設備条件
  • エレベーター
  • 24時間緊急通報システム
備考 ■飲食不可■美容室不可
取扱会社
  • 株式会社オフィス・ミツキ
  • 東京都渋谷区神宮前6丁目18-1 クレインズパーク2F
  • TEL:03-5464-1581
  • 東京都知事 (7) 第71537号
    不動産投資顧問業 (一般)第904号
  • 公益社団法人東京都宅地建物取引業協会
QRコード

QRコード

このQRコードを読み取ることで、スマホでも物件情報を確認できます。

地図

※地図上に表示される物件の位置は付近住所に所在することを表すものであり、実際の物件所在地とは異なる場合がございます。

物件お問い合わせ

必要項目の入力

0/0
必須項目完了

確認画面へ
お進み下さい

0/0
必須項目完了

確認画面へ
お進み下さい

お名前

必須

メールアドレス

必須

電話番号

任意

要望

任意

内容

任意

利用規約及びプライバシーポリシーを必ずお読みください。左記内容に同意いただいた場合は、確認画面へお進み下さい。

未入力項目があります

この物件を見た人はこちらの物件も見ています

ReRaiMaレライマ渋谷道玄坂

ReRaiMaレライマ渋谷道玄坂の画像

賃料
91.26万円
種別
事務所
住所
東京都渋谷区道玄坂1丁目
交通
渋谷駅
徒歩5分

青山アイビスビル

青山アイビスビルの画像

賃料
73.7万円
種別
事務所
住所
東京都渋谷区渋谷2丁目
交通
渋谷駅
徒歩8分

越一ビル

越一ビルの画像

賃料
73.084万円
種別
事務所
住所
東京都渋谷区神宮前6丁目
交通
渋谷駅
徒歩6分

青山ルカビル

青山ルカビルの画像

賃料
71.39万円
種別
事務所
住所
東京都渋谷区渋谷2丁目
交通
渋谷駅
徒歩8分

お問い合わせ

株式会社オフィス・ミツキ

会社画像

03-5464-1581

9:30-18:30  定休日:土日祝日

  • 〒150-0001
  • 東京都渋谷区神宮前6丁目18-1 クレインズパーク2F

物件リクエスト

トップへ戻る