03-5464-1581

営業時間:
9:30-18:30
定休日:
土日祝日

原宿・表参道の貸店舗・事業用物件|株式会社オフィス・ミツキ > (店舗(賃貸))地域から探す > 渋谷区 > 第28SYビル > 1.2階

第28SYビル 1.2階

物件紹介

賃料/坪単価
220万円 /
134638.92円
坪数/面積
16.34坪 /
54.02㎡
所在階
-
管理費・共益費
-
保証金
10ヶ月
礼金
-
  • お問い合わせ
  • 検討リストに追加

PHOTO GALLERY

印刷する
  • 【外観】 | 第28SYビル |  

    【外観】 

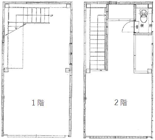
  • 【間取り】 | 第28SYビル |  

    【間取り】 

  • 【外観】 | 第28SYビル |  

※写真や図と実際の現状とが異なる場合は現状を優先させていただきます。

設備条件

  • 居抜物件
  • スケルトン渡し
  • 耐震構造

お問い合わせ

株式会社オフィス・ミツキ

03-5464-1581

  • 〒150-0001
  • 東京都渋谷区神宮前6丁目18-1 クレインズパーク2F

9:30-18:30  定休日:土日祝日

物件概要

【店舗】 物件番号:98158330 情報更新日:2025年10月10日 次回更新予定日:2025年12月31日
所在地 東京都渋谷区神宮前6丁目
交通
坪数(面積) 16.34坪(54.02㎡)
賃料/坪単価 220万円/134638.92円 管理費・共益費 -
敷金/礼金/保証金 -/-/10ヶ月 償却/敷引 20.00%/-
更新料 0万円 権利金/雑費 -/-
造作譲渡金 - 駐車場/月額料金 -/-
保険加入/料金 有/- 保険名/保険期間 -/-
保証人代行義務/利用料 必加入/ 月額固定費の1ヶ月分 保証会社 その他
保証会社詳細 - 向き -
築年月(築年数) 2002年 1月 (築23年) 契約期間 定期借家 5年
種別/構造 店舗/鉄骨造 用途地域 -
部屋/所在階/階建 1.2階/-/2階建 総戸数 -
現況/引渡時期 -/2026年03月中旬予定 取引態様 仲介
物件番号 98158330 取引条件の有効期限 2025年12月31日
設備条件
  • 居抜物件
  • スケルトン渡し
  • 耐震構造
備考 ・スケルトン(居抜き相談可) ※前テナント:スニーカー販売店・1階:8.17坪、2階:8.17坪・屋上広告塔付

【その他】
前テナント業種:小売・物販その他 / 業種補足説明:スニーカー販売店
出店可能業種:その他
取扱会社
  • 株式会社オフィス・ミツキ
  • 東京都渋谷区神宮前6丁目18-1 クレインズパーク2F
  • TEL:03-5464-1581
  • 東京都知事 (7) 第71537号
    不動産投資顧問業 (一般)第904号
  • 公益社団法人東京都宅地建物取引業協会
QRコード

QRコード

このQRコードを読み取ることで、スマホでも物件情報を確認できます。

地図

※地図上に表示される物件の位置は付近住所に所在することを表すものであり、実際の物件所在地とは異なる場合がございます。

物件お問い合わせ

必要項目の入力

0/0
必須項目完了

確認画面へ
お進み下さい

0/0
必須項目完了

確認画面へ
お進み下さい

お名前

必須

メールアドレス

必須

電話番号

任意

要望

任意

内容

任意

利用規約及びプライバシーポリシーを必ずお読みください。左記内容に同意いただいた場合は、確認画面へお進み下さい。

未入力項目があります

この物件を見た人はこちらの物件も見ています

第30SYビル

第30SYビルの画像

賃料
220万円
種別
店舗
住所
東京都渋谷区渋谷1丁目
交通
渋谷駅
徒歩8分

Planex Watt

Planex Wattの画像

賃料
155.52万円
種別
店舗事務所
住所
東京都渋谷区恵比寿南1丁目
交通
恵比寿駅
徒歩3分

第16スカイビル

第16スカイビルの画像

賃料
286万円
種別
店舗一部
住所
東京都渋谷区千駄ヶ谷3丁目
交通
北参道駅
徒歩2分

(仮称)フィル・パーク神宮前5丁目

(仮称)フィル・パーク神宮前5丁目の画像

賃料
149.5万円
種別
店舗一部
住所
東京都渋谷区神宮前5丁目
交通
表参道駅
徒歩5分

お問い合わせ

株式会社オフィス・ミツキ

会社画像

03-5464-1581

9:30-18:30  定休日:土日祝日

  • 〒150-0001
  • 東京都渋谷区神宮前6丁目18-1 クレインズパーク2F

物件リクエスト

トップへ戻る